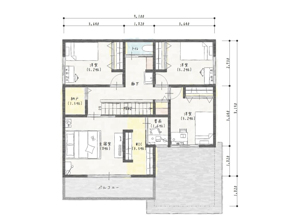
家事動線も生活動線もしっかり確保 毎日がリゾートホテルの暮らしプラン 間取り紹介 Tweet Share Hatena Pocket RSS feedly Pin it この記事のタイトルとURLをコピーする R 概要 延べ面積 :141.19㎡(42.71坪) 部屋数 :4LDK 玄関 :北玄関 間口(幅):9.1m 奥行(縦):10.01m 収納率 :13.83% Tweet Share Hatena Pocket RSS feedly Pin it 2階ファミクロにするとコンパクトな家でも余裕のある生活が実現できますプラン 前の記事 現代社会に疲れたあなたへ これからの時代に必要なミニマム思考プラン 次の記事
コメント