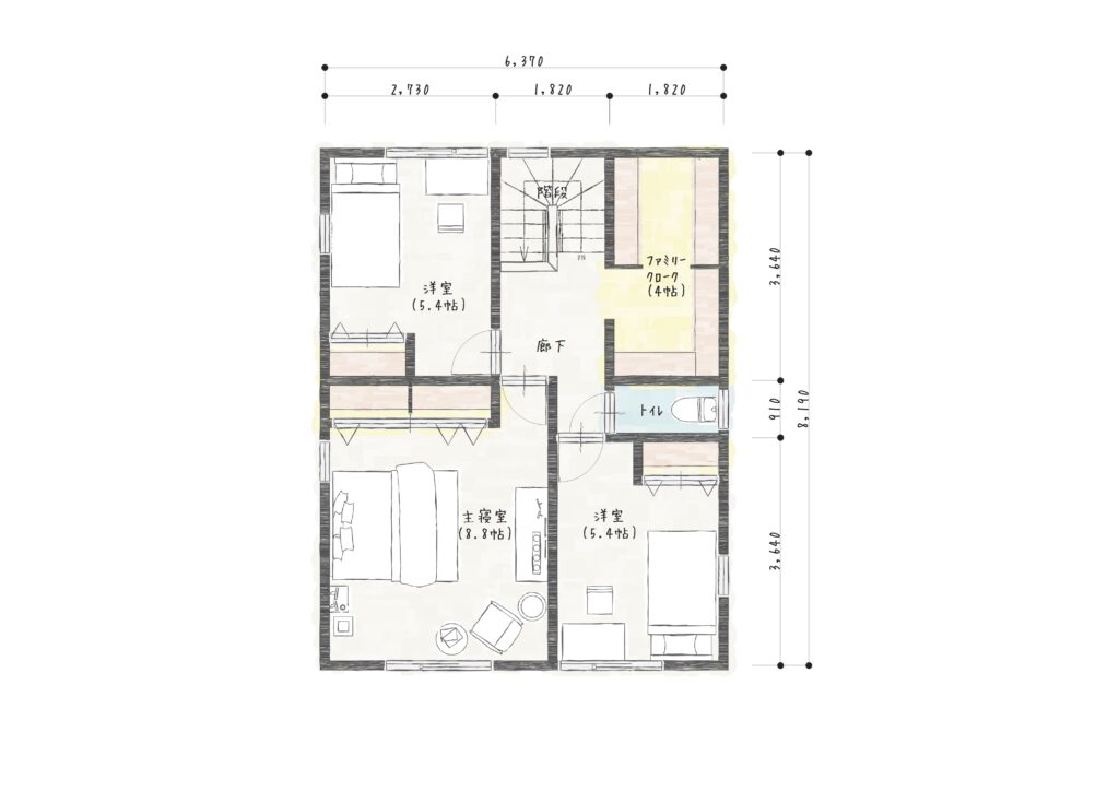
2階ファミクロにするとコンパクトな家でも余裕のある生活が実現できますプラン 間取り紹介 Tweet Share Hatena Pocket RSS feedly Pin it この記事のタイトルとURLをコピーする 概要 延べ面積 :102.68㎡(31.06坪) 部屋数 :3LDK 玄関 :北玄関 間口(幅):6.37m 奥行(縦):8.19m 収納率 :11.59% イメージギャラリー Tweet Share Hatena Pocket RSS feedly Pin it 家族の気配を感じながら、一人の時間も大切にできる隠れ家的ヌックプラン 前の記事 家事動線も生活動線もしっかり確保 毎日がリゾートホテルの暮らしプラン 次の記事
コメント